advanced manufacturing incubator
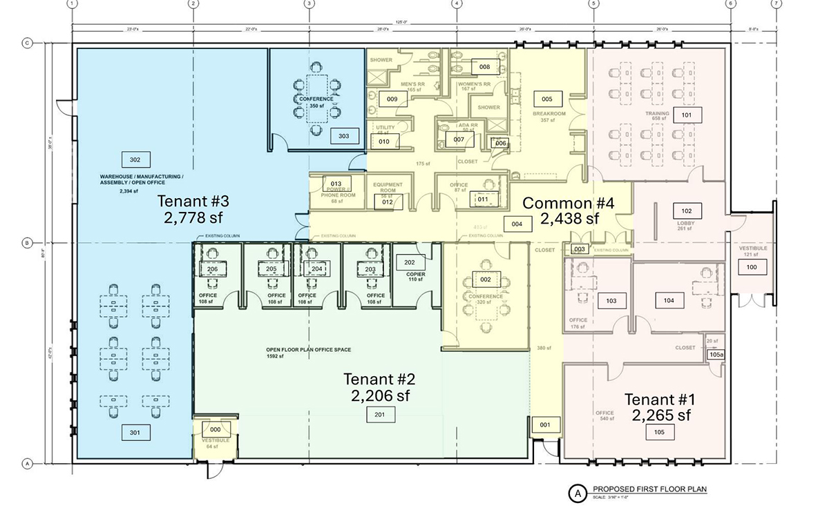
The Village of Evendale acquired 10385 Spartan Drive to facilitate a long-term strategic initiative providing tenant incubation space for start-up companies. As an extension of the AeroHub development, the Spartan Drive tenant occupancy is focused on advanced manufacturing and aerospace industries. Providing incubation space for start-up companies is a key element in the long-term plan to assist, grow, and retain companies within Evendale. The vision includes creating relationships and economic incentives that provide the impetus for each company to locate their permanent facilities within the AeroHub development. The 10,000 square foot building concept plan is structured to accommodate three (3) tenant spaces with access to common use bathrooms, breakroom, conference space, and building utility services. The concept design reflects planned facility improvements for the building’s exterior, Angel Aerial tenant space, “white box” of future tenant space, and common building amenities space.
10,000 sf
Phased Construction
Tenant Fit Out












































